Дизайн и строительство коммерческой недвижимости

Работаем по всей России
Tilda Publishing
Дизайн и строительство коммерческой недвижимости
8 800 300-48-18
Работаем по всей России
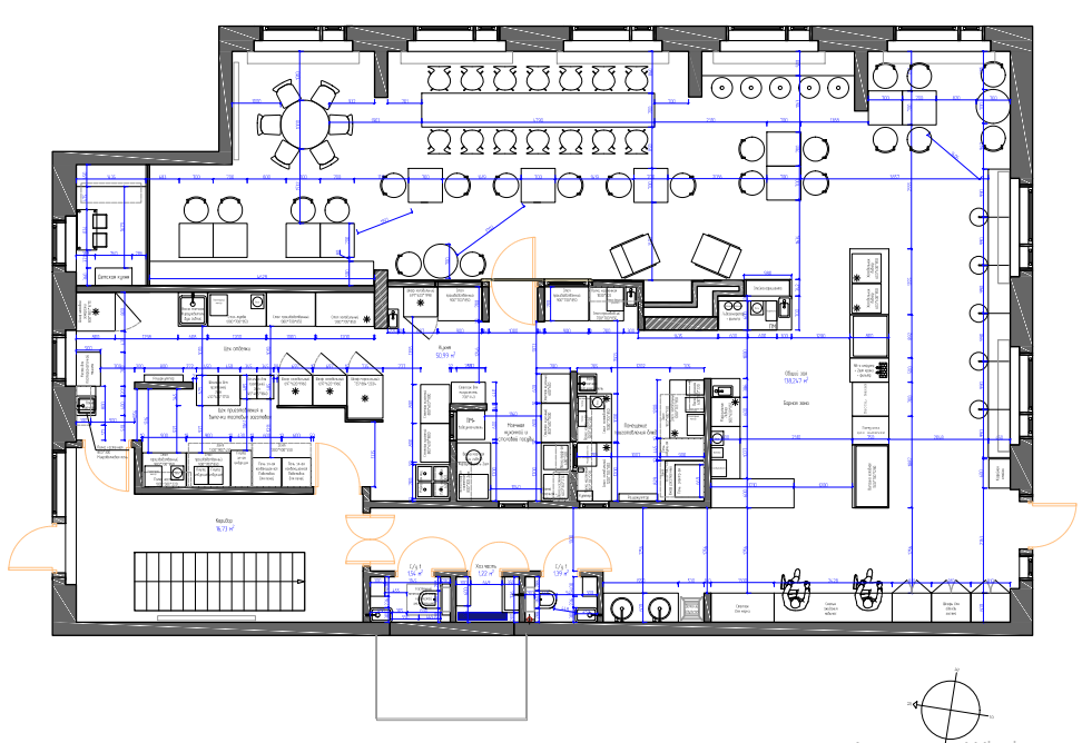
Назначение: кофейня для завтраков и десертов
Площадь: 296,28 кв.м
Расположение: Новосибирск, Чаплыгина, 115

Уютное и светлое кафе с двумя уровнями. На первом этаже находится кухня и зал для посетителей, на втором - склад для продуктов и техническое помещение под инженерные коммуникации, а также рабочее пространство для сотрудников .

Смотрится все гармонично, все ненужное скрыто от глаз посетителей, а все интересное, наоборот, можно увидеть в полном объеме. Например, на первом этаже гости могут наблюдать через панорамные окна за
приготовлением блюд на кухне, увидеть ту магию, что творят повара и почувствовать запах ароматного кофе.

Интересным моментом стал антресольный этаж, которого не было. Изначально здесь было помещение высотой 6 метров, что позволило сделать дополнительный этаж.